Page suivante
Page précédente
Fort-Mahon-Plage (80120)

Appartement 2 pièce(s) 1 chambre(s) 62.44 m²

1
Balcon
Ascenseur
519 000 €
Réf MC647

Appartement plein centre des commerces et vue mer ... neuf, tout confort, 62m² se compose : d'une entrée, une chambre, une salle d'eau, un WC et un sélon séjour avec cuisine équipée face mer ... possibilité d une seconde chambre comme sur le plan d'origine ... un balcon de 26m² vous permettra de profiter des atouts de la station.

Un garage à disposition ...

A découvrir rare dans le secteur ...

Bilan énergétique

Diagnostics énergetiques
Consommation énergétique
A B C D E F G
Emission de gaz à effet de serre
A B C D E F G
DPE non concerné
A propos de ce bien Caractéristiques de ce bien
  • Surface 62,44 m²
  • carrez 62,44 m²
  • séjour 35 m²
  • 1 chambre(s)
  • 1 salle(s) d'eau
  • construit en 2023
  • cuisine américaine (équipée)
  • Chauffage collectif : chaudière (gaz de ville)
  • 1 garage(s)
  • exposition Sud-Ouest
  • 2 côté(s) mitoyen(s)
  • 1 niveau(x)
  • 3ème étage
  • 4 étage(s)
  • ascenseur
  • vue AVENUE ET MER
  • balcon
  • accès handicapé

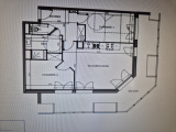
Composition

Composition de ce bien

Rez-de-chaussée

  • entrée 7.67 m²
  • salon/sejour 35.35 m²
  • chambre 12.71 m²
  • salle d'eau 5.39 m²
  • WC 1.32 m²
  • balcon 26.65 m²

Info copro

Copropriété
  • Copropriété Oui
  • Quote part annuelle des charges 1 000 €

Financier

Informations financières
Prix de vente honoraires TTC inclus 519 000 €

Autour du bien

Découvrez le quartier

Simulation

Calcul des mensualités
* Champs obligatoires
MER & CAMPAGNE Agence